Artykuł
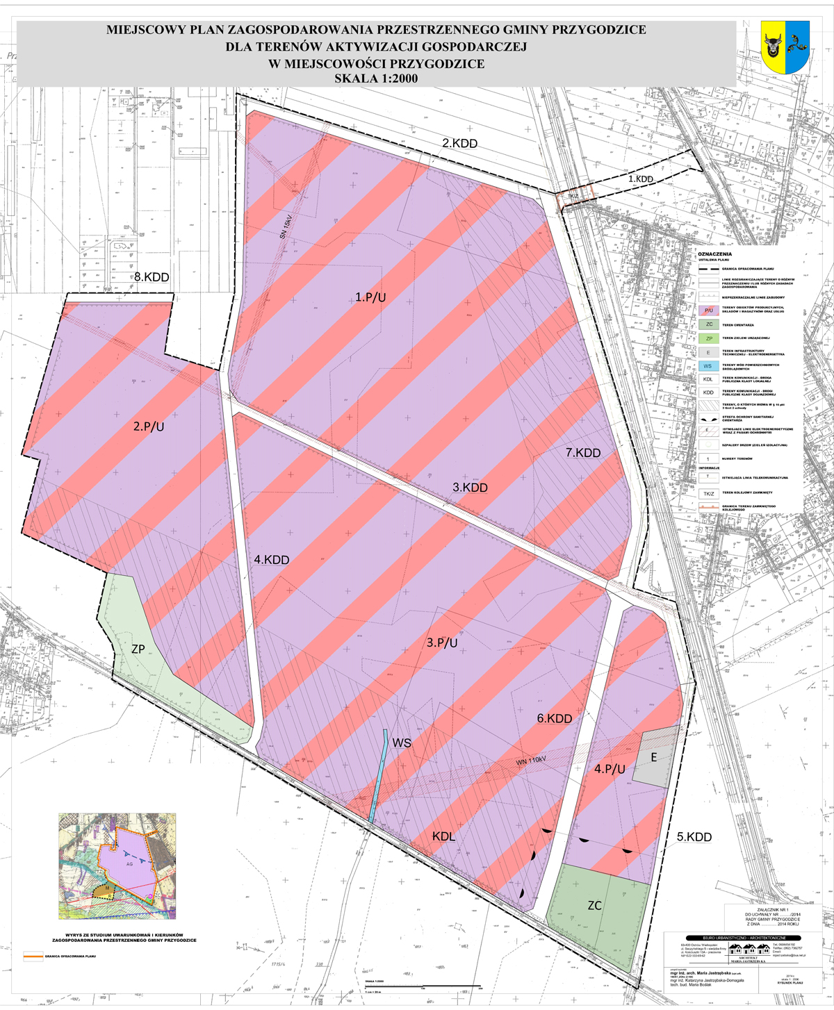
■ Gmina Przygodzice uczestniczy wespół z Powiatem Ostrowskim w przygotowaniu pełnych założeń do projektu umożliwiającego uzbrojenie 100 ha terenu inwestycyjnego pomiędzy Przygodzicami, a Jankowem Przygodzkim.
Te działania są następstwem przyjętego wcześniej studium oraz uchwalonego planu zagospodarowania przestrzennego.
Powiększ grafikę☟
Zobacz obszar na mapach Google ↓
UCHWAŁA NR IX/67/2015 RADY GMINY PRZYGODZICE
z dnia 17 sierpnia 2015 r.
w sprawie uchwalenia miejscowego planu zagospodarowania przestrzennego gminy Przygodzice dla terenów aktywizacji gospodarczej w miejscowości Przygodzice.
☛ Do pobrania wraz z załącznikami.
☟ Powiększ grafikę
















